Villa con appartamento indipendente, garage interrato, area SPA e giardino naturale.
Descrizione dell’immobile:
L’edificio è composto da due unità abitative separate e offre una distribuzione degli spazi ben studiata, finiture di alta qualità e ampie zone giorno esposte a sud. L’architettura moderna è caratterizzata da linee pulite, strutture aperte e una connessione costante con la natura.
Entrambe le unità abitative sono accessibili a livello del suolo. Grazie alla posizione in pendenza del terreno, è possibile un accesso a livello sia al piano terra che al primo piano.
Unità abitativa principale (appartamento padronale)
Questo esclusivo appartamento su due livelli si estende tra piano terra e primo piano e offre ambienti spaziosi per esigenze abitative di alto livello.
Piano terra:
Primo piano:
Unità abitativa secondaria (appartamento indipendente)
Questo appartamento compatto ma elegante, situato nella zona est del primo piano, è ideale come alloggio per ospiti, ufficio o da affittare.
Caratteristiche particolari
Area SPA al piano terra (abbassata di ca. 75 cm):
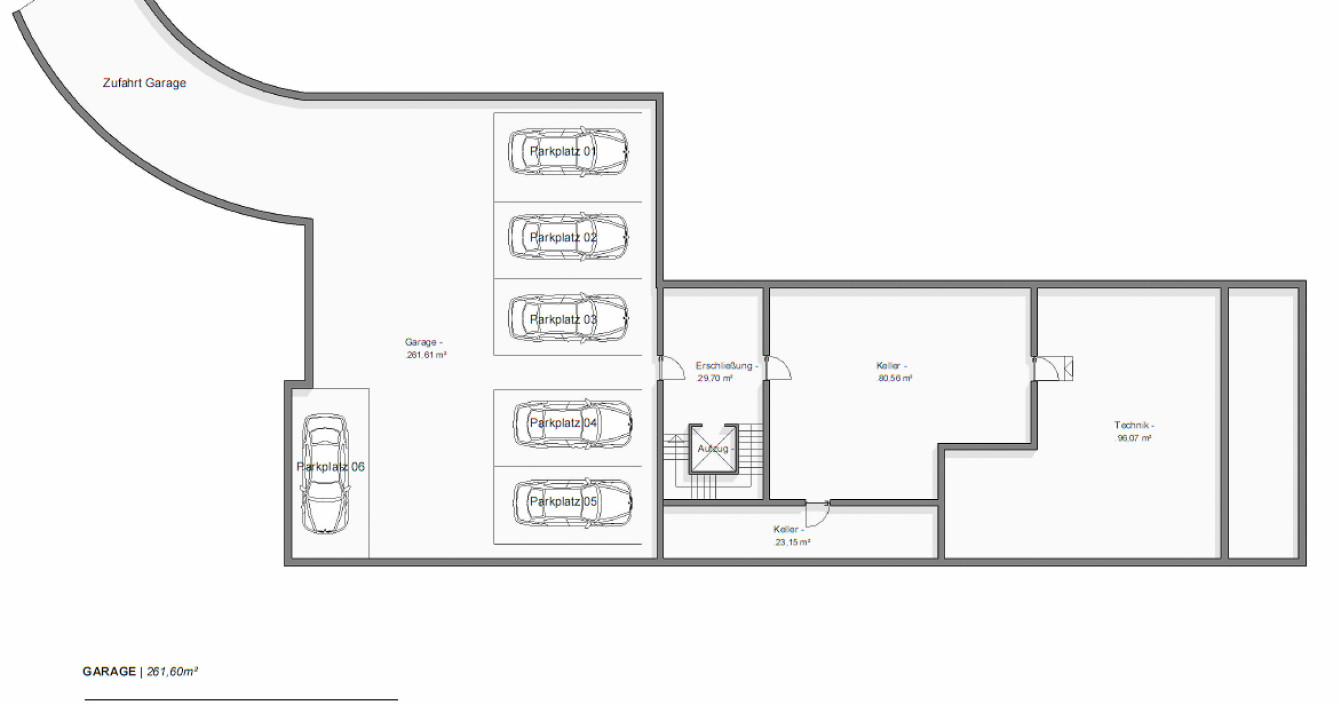
Garage interrato con accesso a livello, adattato all’andamento del terreno
Ascensore dal piano interrato fino al primo piano
Balconi e zone soggiorno esposte a sud con illuminazione di alta qualità
Giardino naturale con laghetto e piante tipiche della regione
Questa residenza unifamiliare unisce chiarezza architettonica, vita immersa nella natura e una suddivisione funzionale in due unità abitative indipendenti. Che si tratti di una casa multifamiliare, di un investimento con potenziale di affitto o di una residenza esclusiva con comfort wellness, questo progetto offre la massima qualità abitativa in una posizione da sogno!
La scelta della propria casa è indubbiamente tra le decisioni
più significative della vita. Ed è anche un grande investimento,
che richiede un’attenta riflessione.
La scelta della propria casa è indubbiamente tra le decisioni
più significative della vita. Ed è anche un grande investimento,
che richiede un’attenta riflessione.
Sì, inviatemi le
ultime offerte





