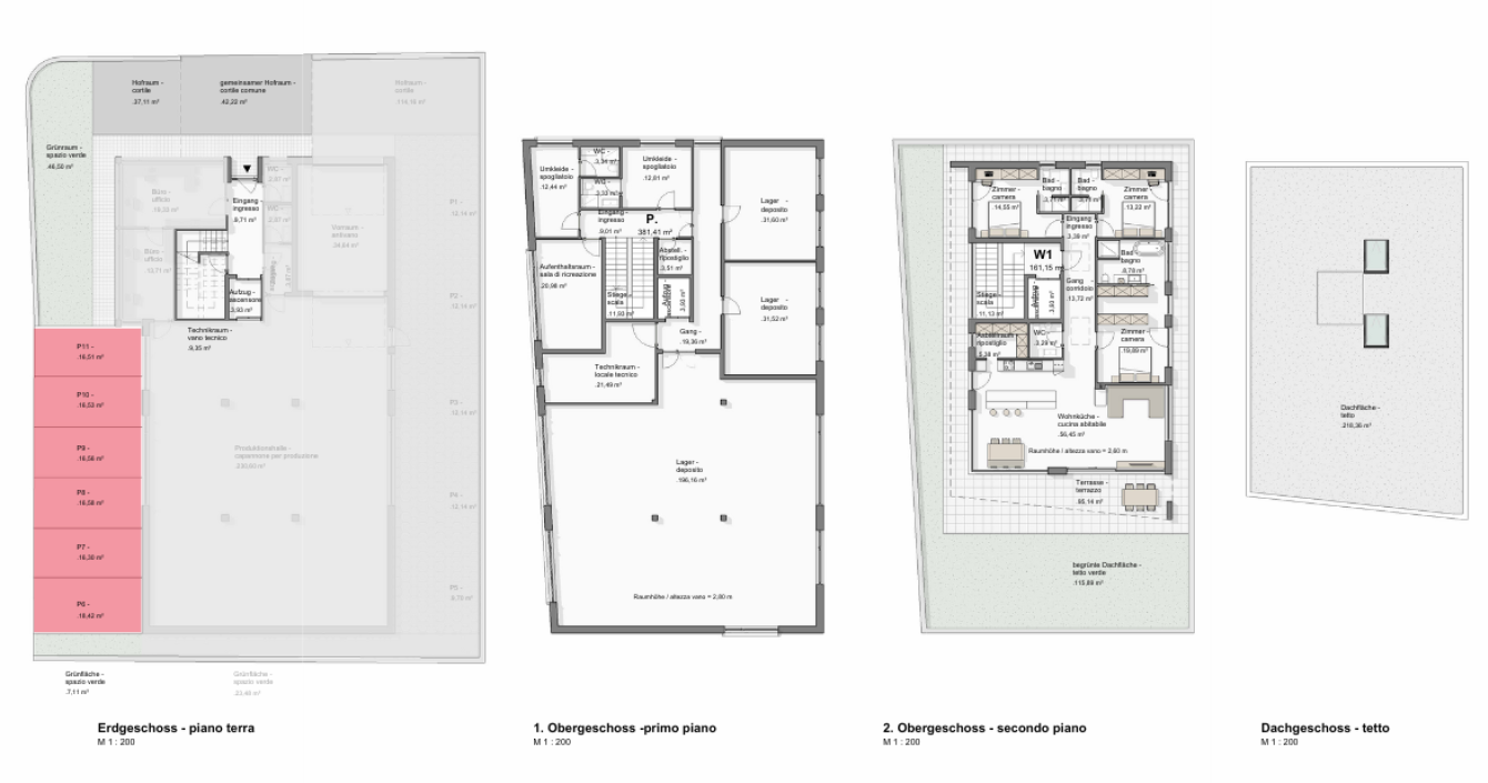
In vendita un immobile polifunzionale a Casateia, composto da un ampio locale commerciale al primo piano con una superficie di 381,41 m² e da un’unità abitativa al secondo piano di 161,15 m² con una spaziosa terrazza.
La superficie commerciale complessiva ammonta a 778,53 m².
L’immobile si trova in uno stato di grezzo di pregio, che consente una suddivisione interna flessibile e personalizzabile secondo le proprie esigenze.
Completano l’offerta sei posti auto.
La combinazione di spazi commerciali e abitativi in un’unica proprietà offre molteplici possibilità d’uso – ideale per vivere e lavorare sotto lo stesso tetto.
La scelta della propria casa è indubbiamente tra le decisioni
più significative della vita. Ed è anche un grande investimento,
che richiede un’attenta riflessione.
La scelta della propria casa è indubbiamente tra le decisioni
più significative della vita. Ed è anche un grande investimento,
che richiede un’attenta riflessione.
Sì, inviatemi le
ultime offerte





