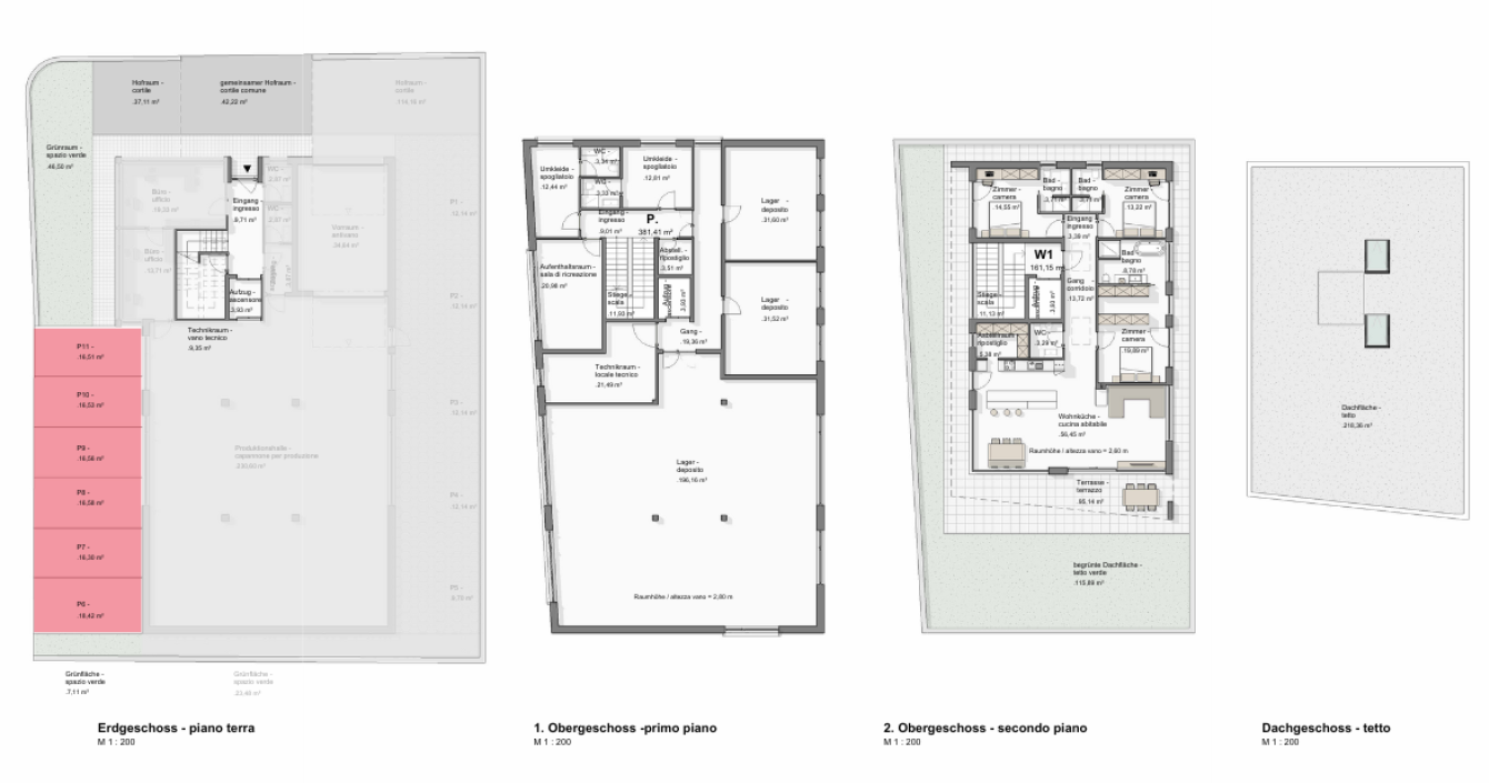
Zum Verkauf steht ein vielseitig nutzbares Objekt in Gasteig, bestehend aus einem großzügigen Gewerbelokal im 1. Obergeschoss mit einer Fläche von 381,41 m² sowie einer darüberliegenden Wohneinheit im 2. Obergeschoss mit 161,15 m² Wohnfläche und einer weitläufigen Terrasse.
Die gesamte Handelsfläche beträgt 778,53 m².
Das Objekt befindet sich im Edelrohbauzustand, wodurch die Inneneinteilung frei und individuell nach Ihren Bedürfnissen gestaltbar ist.
Sechs Autoabstellplätze runden dieses attraktive Angebot ab.
Die Kombination aus Gewerbe- und Wohnfläche an einem Standort eröffnet vielfältige Nutzungsmöglichkeiten – ideal für Arbeiten und Wohnen unter einem Dach.
Die Wahl des Eigenheims zählt zweifellos zu den bedeutsamsten Entscheidungen im Leben. Es ist gleichzeitig auch eine der größten Investitionen, die sorgfältig und umsichtig bedacht sein muss.
Die Wahl des Eigenheims zählt zweifellos zu den bedeutsamsten Entscheidungen im Leben. Es ist gleichzeitig auch eine der größten Investitionen, die sorgfältig und umsichtig bedacht sein muss.
Bitte senden
Sie mir die
neusten
Angebote zu:








